Рафшторы Alumdevelop — это современные наружные жалюзи и высокотехнологичные фасадные системы, которые отсекают до 90% солнечного тепла до нагрева остекления. Мы производим 5 линеек продукции: от универсальных AlumEconomy (подходящих также для интерьеров) до усиленных антивандальных систем AlumProtect.
Наше производство в Санкт-Петербурге оснащает конструкции премиальной автоматикой Somfy и Dooya. Мы предлагаем заводские цены, обеспечиваем профессиональный выездной монтаж в любом регионе РФ и оперативную доставку заказов через ТК по всей России.
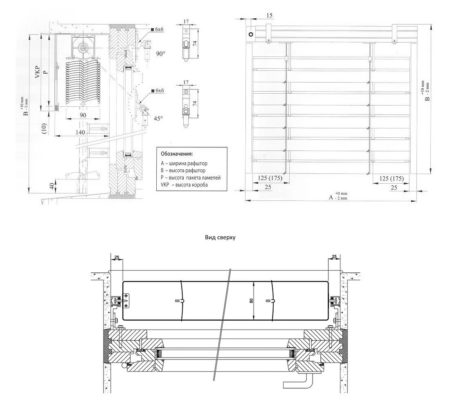
Техническое сравнение рафштор Alumdevelop
| Серия рафштор | Конструктивные особенности | Степень защиты и КПД | Рекомендуемая область применения | Тип управления (Somfy / Dooya) |
| AlumEconomy | Облегченная ламель, компактный короб | Солнцезащита до 75%, установка на фасад и в интерьер | Малые проемы, частные кабинеты, офисные перегородки | Ручное / Электропривод (Датчики солнца и ветра) |
| AlumStandart | Экструдированный нижний профиль, высокая жесткость | Стандартная ветроустойчивость, отражение тепла 80% | Типовое остекление жилых и коммерческих зданий | Ручное / Электропривод (Датчики солнца и ветра) |
| AlumElegant | Элегантная S-образная форма, впрессованный уплотнитель | Повышенная терморегуляция, бесшумность при ветре | Премиальные коттеджи, загородные резиденции | Ручное / Электропривод (Датчики солнца и ветра) |
| AlumEclipse | Профиль для Z-образного перекрытия, звукоизоляция | Максимальное затенение (Blackout), шумоподавление | Спальни, домашние кинотеатры, гостиницы | Ручное / Электропривод (Датчики солнца и ветра) |
| AlumProtect | Антивандальный усиленный алюминий, жесткая фиксация | Взломостойкость, защита от взлома и деформаций | Первые этажи, банки, витрины, режимные объекты | Ручное / Электропривод (Датчики солнца и ветра) |
Интеллектуальное управление: Somfy и Dooya
Мы оснащаем наши изделия передовой автоматикой, превращая их в часть «Умного дома»:
- Somfy (Франция): Премиальные приводы с обратной связью, бесшумным ходом и интеграцией в любые системы управления.
- Dooya: Надежное и технологичное решение, сочетающее инновации и доступную стоимость.
Автоматические датчики солнца и ветра самостоятельно регулируют положение ламелей, защищая интерьер от выгорания, а сами рафшторы — от штормовых порывов.
Почему выбирают Alumdevelop?
Работая с нами, вы получаете продукт напрямую от завода-изготовителя в СПб:
- Собственное производство: Контроль качества на каждом этапе и возможность покраски в любой цвет по шкале RAL.
- География работы — вся Россия: Мы не ограничиваемся Петербургом. Наша команда осуществляет выездной монтаж на объектах по всей РФ.
- Безопасная логистика: Отправка готовых изделий транспортными компаниями в надежной упаковке в любой регион.
- Гарантия и сервис: Техническая поддержка и обслуживание систем на протяжении всего срока эксплуатации.
Часто задаваемые вопросы о рафшторах Alumdevelop
1. В чем главное преимущество рафштор перед кондиционером?
Рафшторы Alumdevelop работают на опережение: они отсекают до 90% солнечного тепла еще до того, как оно нагреет стеклопакет. Это позволяет снизить температуру в помещении на 5–7°C естественным путем и сократить расходы на электричество (работу кондиционеров) до 40%.
2. Можно ли установить рафшторы AlumEconomy внутри помещения?
Да, серия AlumEconomy специально разработана как универсальное решение. Благодаря компактным размерам короба и эстетичному виду ламелей, их можно монтировать как на фасаде, так и в интерьере в качестве технологичных жалюзи с возможностью автоматизации.
3. Какая автоматика лучше: Somfy или Dooya?
Оба бренда надежны, но решают разные задачи. Somfy (Франция) — это премиальный сегмент с бесшумным ходом и идеальной интеграцией в «Умный дом». Dooya — это «золотая середина», предлагающая высокую надежность и современное радиоуправление по более доступной цене.
4. Насколько надежны антивандальные рафшторы AlumProtect?
Модель AlumProtect оснащена нижним профилем из экструдированного алюминия и усиленными направляющими. Это делает их устойчивыми к механическим повреждениям и попыткам взлома, что идеально подходит для первых этажей и коммерческих объектов.
5. Как осуществляется монтаж, если объект находится не в Санкт-Петербурге?
Несмотря на то, что производство находится в СПб, Alumdevelop работает по всей России. Мы предлагаем два варианта: профессиональный выездной монтаж нашей бригадой в любой регион или бережную доставку готовых систем через ТК с подробной инструкцией по установке.
6. Как рафшторы ведут себя при сильном ветре и не будут ли они дребезжать?
Конструкции Alumdevelop изначально проектируются с расчетом на высокие ветровые нагрузки. Системы серий AlumStandart, Elegant, Eclipse и Protect обладают повышенной жесткостью и надежной фиксацией в направляющих.
Чтобы исключить металлический шум и дребезжание, в сериях AlumElegant, AlumEclipse и AlumProtect предусмотрена впрессованная резиновая вкладка по всей длине ламели, которая эффективно гасит вибрации. Для максимальной безопасности мы рекомендуем установку датчиков ветра Somfy или Dooya: при критических порывах автоматика сама поднимет рафшторы в защитный короб, предотвращая поломку и обеспечивая полную тишину.
Закажите рафшторы (наружные жалюзи) Alumdevelop напрямую от производителя в СПб с гарантией лучшей цены, профессиональным выездным монтажом или оперативной доставкой ТК в любой регион России.















Очень нравится, что можно регулировать угол ламелей: свет остаётся в квартире, но прямые лучи не слепят и не создают бликов на экранах. При этом с улицы сохраняется приватность, что для витражных окон было важным моментом. С точки зрения внешнего вида рафшторы выглядят современно и технологично, фасад стал даже интереснее. Управление удобное, механизм работает плавно и тихо. Монтаж сделали аккуратно, всё по индивидуальным размерам. Это не просто защита от солнца, а полноценное решение для комфорта и энергоэффективности. Очень довольны выбором.
Это не просто солнцезащита, а полноценный инструмент управления светом и комфортом. Ламели регулируются настолько точно, что можно подобрать идеальное освещение в любое время дня. Внешний вид — отдельная тема. Терраса теперь выглядит современнее и аккуратнее, будто часть дорогой архитектурной концепции. Цвет ламелей подобрали точно в тон фасаду, поэтому всё смотрится очень гармонично. Производство заняло меньше времени, чем ожидали, монтаж прошёл быстро и без суеты.
Хотелось надёжную защиту от солнца, но при этом сохранить современный внешний вид фасада, и с этой задачей система справилась идеально. Ламели регулируются плавно, можно легко менять уровень освещения в помещениях в течение дня. Качество материалов на высоте — всё выглядит солидно, механизм работает тихо и без заеданий. Особенно понравилось, что конструкцию изготовили точно по нашим размерам: идеально подошла под нестандартные окна. Монтаж прошёл безупречно, мастера всё сделали аккуратно и быстро. Теперь дом выглядит современно, а внутри стало гораздо комфортнее в жаркую погоду. Очень довольны!
Для нашего SPA-центра были важны два момента: стильный внешний вид и функциональность. Мы остановили выбор на алюминиевых рафшторах для панорамных окон. Ламели регулируются под любым углом, поэтому мы легко контролируем свет и создаём комфорт для гостей. Даже в жаркие солнечные дни внутри прохладно, так как рафшторы отлично отражают тепло. Управление автоматическое, что очень удобно – можно настроить сценарии открытия в зависимости от времени суток. Выглядят премиально, отлично вписались в фасад, а обслуживание минимальное. Гости постоянно отмечают, как приятно находиться в зонах с мягким рассеянным светом. Очень довольны выбором!
Поставили наружные рафшторы на южную сторону дома — разница колоссальная. Летом стало заметно прохладнее, кондиционеры практически не включаем. Управление моторизированное, подключили к Алисе — удобно, всё работает по команде или таймеру. Выглядят стильно, крепятся надёжно, ничего не гремит даже при ветре. Отличное решение для защиты от солнца и придания дому современного вида. Очень довольны!
Установили рафшторы на алюминиевое витражное остекление главного корпуса, и решение оказалось более чем удачным. Помещение до этого летом перегревалось, а зимой были проблемы с регулировкой светового потока. Сейчас ситуация кардинально изменилась. Рафшторы отлично защищают от прямого солнца, особенно в обеденные часы. У нас окна выходят на юг, и раньше сотрудники жаловались на жару и блики на экранах. Теперь внутри стало гораздо комфортнее, свет мягкий, рассеянный. Плюс — экономим на кондиционировании. Управление автоматическое, привязали к системе “умного здания” — рафшторы сами опускаются или поднимаются в зависимости от температуры и солнечного излучения. Конструкция прочная, надёжная, выглядит современно и аккуратно. Очень доволен решением: это и эстетика, и энергоэффективность, и забота о персонале в одном. Рекомендую!
Установили алюминиевые уличные жалюзи-рафшторы на фасад дома — и теперь не представляем, как раньше без них обходились. Они отлично защищают от солнца, особенно в летний зной, при этом позволяют регулировать поток света благодаря повороту ламелей. Интерьер в доме стал менее подвержен выгоранию, а температура внутри — заметно ниже без кондиционеров. Выбрали автоматическое управление — удобно, быстро, современно. Порадовало качество изготовления: алюминий прочный, покрытие стойкое, всё выглядит дорого и аккуратно. Рафшторы не только функциональны, но и придают дому современный архитектурный облик. Рекомендуем!
Мы открыли новый фитнес-клуб с панорамным остеклением — хотели сделать пространство светлым и открытым, но уже в первые недели столкнулись с проблемой: солнце сильно перегревало помещение, особенно в утренние и дневные часы. Кондиционеры не справлялись, и было решено установить наружные жалюзи-рафшторы. Это решение оказалось идеальным! Во-первых, они отлично защищают от солнечных лучей, при этом не перекрывая полностью обзор. Свет остаётся мягким, рассеянным — заниматься стало гораздо комфортнее. Во-вторых, внешний вид — просто вау! Клуб стал выглядеть ещё более современно и технологично. Посетители часто спрашивают, где мы такое нашли. Управление — автоматическое, с датчиком освещённости и таймерами. Всё работает чётко: утром жалюзи закрываются, вечером открываются. Не нужно постоянно настраивать вручную — система всё делает за нас. Плюс — энергосбережение. Стало заметно легче поддерживать нужную температуру, а значит, меньше нагрузка на систему охлаждения и экономия на электричестве. Очень довольны результатом — и с эстетической точки зрения, и с практической. Рафшторы — must-have для любого современного коммерческого пространства с большими окнами.
Для нашего производственного корпуса требовалось надежное и эффективное решение для защиты от солнца. Остановились на рафшторах, и это оказалось отличным выбором! Они прекрасно справляются со своей задачей – регулируют освещение в помещении, уменьшают нагрев от солнца и создают комфортные условия для работы. Металлические ламели прочные, выдерживают ветровые нагрузки и не деформируются. Отдельно стоит отметить удобство управления – можно легко менять угол наклона ламелей в зависимости от потребностей. Механизм работает плавно и без сбоев, а внешний вид остается презентабельным даже после длительной эксплуатации. Теперь в цехах стало значительно комфортнее, снизилась нагрузка на системы кондиционирования, а фасад здания выглядит современно и эстетично. Отличное решение для промышленных объектов!
Установили внешние рафшторы на фасадное остекление – результат отличный! Они эффективно защищают от солнца, помогая сохранять прохладу в помещении даже в жаркие дни. Регулируемые ламели позволяют легко контролировать уровень освещения, а прочная конструкция выдерживает любые погодные условия. Внешний вид стильный и современный, идеально дополнил фасад здания. Управление удобное, работает без нареканий. Отличное решение для комфортного климата в помещении и эстетики фасада!
Заказывал наружные жалюзи-рафшторы для дома — остался очень доволен! Отлично защищают от солнца и перегрева, при этом можно легко регулировать уровень освещенности. Конструкция прочная, выдерживает ветер и осадки. Внешний вид стильный, добавляет дому современный вид. Установку сделали быстро и аккуратно. Теперь внутри комфортная температура даже в жару. Рекомендую!
Недавно установил наружные рафшторы, они не только эффективно защищают от солнца и перегрева, но и придают фасаду современный, стильный вид. Управление очень удобное, особенно радует возможность автоматизации – теперь можно регулировать освещение и температуру в помещении буквально одним нажатием кнопки. Материалы и качество исполнения на высоте – шторы выдерживают любые погодные условия, будь то сильный ветер или дождь. Рекомендую наружные рафшторы всем, кто ищет надежное, функциональное и эстетичное решение для дома или офиса. Прекрасное сочетание практичности и дизайна!
Я приобрел уличные жалюзи-рафшторы для своего дома, они прекрасно защищают от солнца – в помещении стало значительно прохладнее. К тому же они стильные и добавляют фасаду современный вид. Установка прошла без проблем, и жалюзи выглядят очень надежно и долговечно. Материалы качественные, а управление легко регулируется – можно настроить угол наклона ламелей для оптимального уровня освещения и уединения.
Уличные горизонтальные металлические жалюзи-рафшторы изготовлены из высококачественного металла, что делает их стойкими к любым погодным условиям — будь то сильный ветер, дождь или палящее солнце. Даже после нескольких месяцев эксплуатации они выглядят как новые. Функциональность на высшем уровне. Управлять жалюзи очень легко, можно быстро регулировать уровень света и проветривания. Когда нужно полностью закрыть окна, они создают отличную защиту от солнца, не позволяя перегреваться помещению. К тому же, они обеспечивают дополнительную приватность, что особенно важно, когда окна выходят на улицу. Дизайн жалюзи также порадовал. Металлические планки смотрятся современно и стильно, прекрасно вписываются в экстерьер дома. Кроме того, они помогают создать эффект легкой вентиляции, не лишая комнат естественного освещения. В общем, мы очень довольны и качеством, и внешним видом, и функциональностью!
Изначально мне была нужна стильная защита от солнца для террасы, которая смотрелась бы эстетично и современно. С момента установки горизонтальных уличных жалюзи я получила массу комплиментов от посетителей. Людям действительно нравится, как жалюзи комплиментируют фасад здания и создают приятную полутень в жаркие дни, что особо важно, ведь мои клиенты могут спокойно наслаждаться своими напитками и блюдами, не мучаясь от яркого солнца. Одной из замечательных особенностей является простота регулировки. Мне или сотрудникам всегда легко изменить угол наклона жалюзи, чтобы достигнуть нужной степени освещенности или приватности. А когда они полностью закрыты, они не только защищают наших гостей от яркого солнечного света, но и от легкого дождя, что невероятно удобно.
Солнцезащитные рафшторы — стильное и функциональное оформление окон! Механизм управления работает плавно и безупречно. Конструкция обеспечивает отличный контроль света, позволяя создавать нужную атмосферу в помещении в любое время суток. Они достаточно функциональны для каждодневного использования.
С самого начала процесса мы ощутили заботливое отношение менеджеров компании. Они помогли подобрать оптимальный вариант рафштор, учитывая архитектурные особенности нашего дома и личные пожелания. В ассортименте был достаточно широкий выбор цветов, что позволило без труда вписать рафшторы в общий стиль нашего дома. Одной из главных причин, по которым мы выбрали именно наружные рафшторы, была дополнительная защита от солнца. Также я хотела бы подчеркнуть их простоту в эксплуатации. Система пультового управления действительно делает их использование удобным и легким. Наши дети без труда управляют системами.
Жалюзи рафшторы не только отлично защищают от солнца и создают уют в помещении, но и стильно дополняют экстерьер. Я выбрал их из-за их функциональности и простоты в управлении — легко регулировать освещение и приватность. Качество материалов и изготовления также на высоте. Я остался очень доволен своим выбором и хочу выразить благодарность компании за отличный продукт и сервис!
В целом, я доволен установкой наружных рафштор на свой дом. Они не только улучшили комфорт и защиту помещения, но и добавили эстетическую привлекательность к фасаду. Я рекомендую рассмотреть такое решение для всех, кто ценит комфорт, безопасность и функциональность своего дома. Что я могу выделить: они помогают защитить помещение от солнечных лучей и перегрева, что позволяет поддерживать комфортную температуру внутри дома. Рафшторы обеспечивают приватность в помещении, защищая его от посторонних глаз. Также они могут служить дополнительной защитой от взломов и нежелательного проникновения. Наружные рафшторы могут быть стильным и функциональным элементом дизайна фасада дома, придавая ему завершенный вид.
Рафшторы отлично справляются с задачей защиты от солнца, позволяя сохранить комфортную температуру в помещении даже в самые жаркие дни. Они позволяют регулировать уровень освещения в помещении, создавая комфортную атмосферу. Системы могут стать стильным элементом фасада здания, придав ему современный и привлекательный вид. Минусы: Рафшторы требуют периодического ухода, так как они могут загрязняться от пыли и грязи. Они стоят дороже, чем обычные жалюзи.
Рафшторы не только защищают дом от солнца, но и придают ему стильный вид. Монтаж прошел достаточно быстро и без нареканий. Они отлично регулируют количество света, которое проникает в помещения.
Говоря на чистоту — я был против установки дома жалюзи. Просто не представлял — как можно чистить такую хрупкую конструкцию? Но у нас все окна на солнечную сторону. И не телевизор посмотреть, и жарко. А вот именно такая конструкция наружных рафштор и решила все проблемы. А еще не нужно окно открывать, чтоб закрыть или открыть — автоматика решает.
Купила наружные жалюзи на окно для дачи. Сама даже не знала, что приобретать. Но сотрудник компании Дмитрий помог с выбором, проинструктировал и подобрал самые лучшие системы. Они отлично работают у меня на даче и радуют глаз.
Заказали рафшторы на окна офиса, южная сторона, солнце палит… Все отлично, работают идеально, удобно управляются с пульта. От солнца защищают, всем довольны. Спасибо!
Конструкция качественная, нареканий в этом плане никаких нет. Понравилась работа команды монтажников. Ребята установили все практически без остановок и перекуров. Четко и быстро, без каких-либо сложностей. После установки показали и рассказали как пользоваться, какие особенности. Благодарю за работу.
В наше кафе установили рафшторы на окна. Заказ выполнили в срок. Установку выполнили замечательно, все работает как надо! Процветания и успехов вашей компании!
Мы заказывали наружные жалюзи (рафшторы). Замерщик очень опытный, дал грамотную консультацию по техническим характеристикам. Еще очень понравилось, что Андрей приехал на замеры вместе с образцами самого материала.
Когда делаешь заказ, все объясняют четко и доступно. Качество продукции отменное, делают работу мастера без задержек и на совесть.
Заказывали наружные жалюзи как некий аналог рольставням, для витрины магазина. Удобно управляются с пульта, достаточно надежны и качество конструкции самой серьезное. Всё достаточно плотно и надежно стоит. Внешне смотрится нормально. В Alumdevelop обращались по рекомендациям, остались довольны обслуживанием и результатом.
Заказывали рафшторы на панорамное окно на даче на втором этаже. Выбор вариантов солидный, долго с выбором определялись. Но тем не менее результатом остались довольны. Всё быстро и качественно нам сделали. Работают уличные жалюзи как часы, и очень стильно выглядят снаружи!
Рафшторы от компании Alumdevelop оказались превосходным решением для фасада офисного здания. Конструкция на самом деле капитальная, качественная, при этом внешне смотрится очень изящно и не создаёт дискомфорта для тех кто внутри. Управляется пультом ДУ, очень удобно. Все арендаторы наши таким обновлением остались довольны, благодарим компанию за качественно выполненную работу.